Property Details
Lovingly held by the same family for almost 60 years, this charming freestanding home presents impeccably maintained interiors with ornate period details and original solid timber joinery throughout. Recently refreshed, the elegant home is move-in ready while offering ample scope to update and personalise to suit individual tastes.
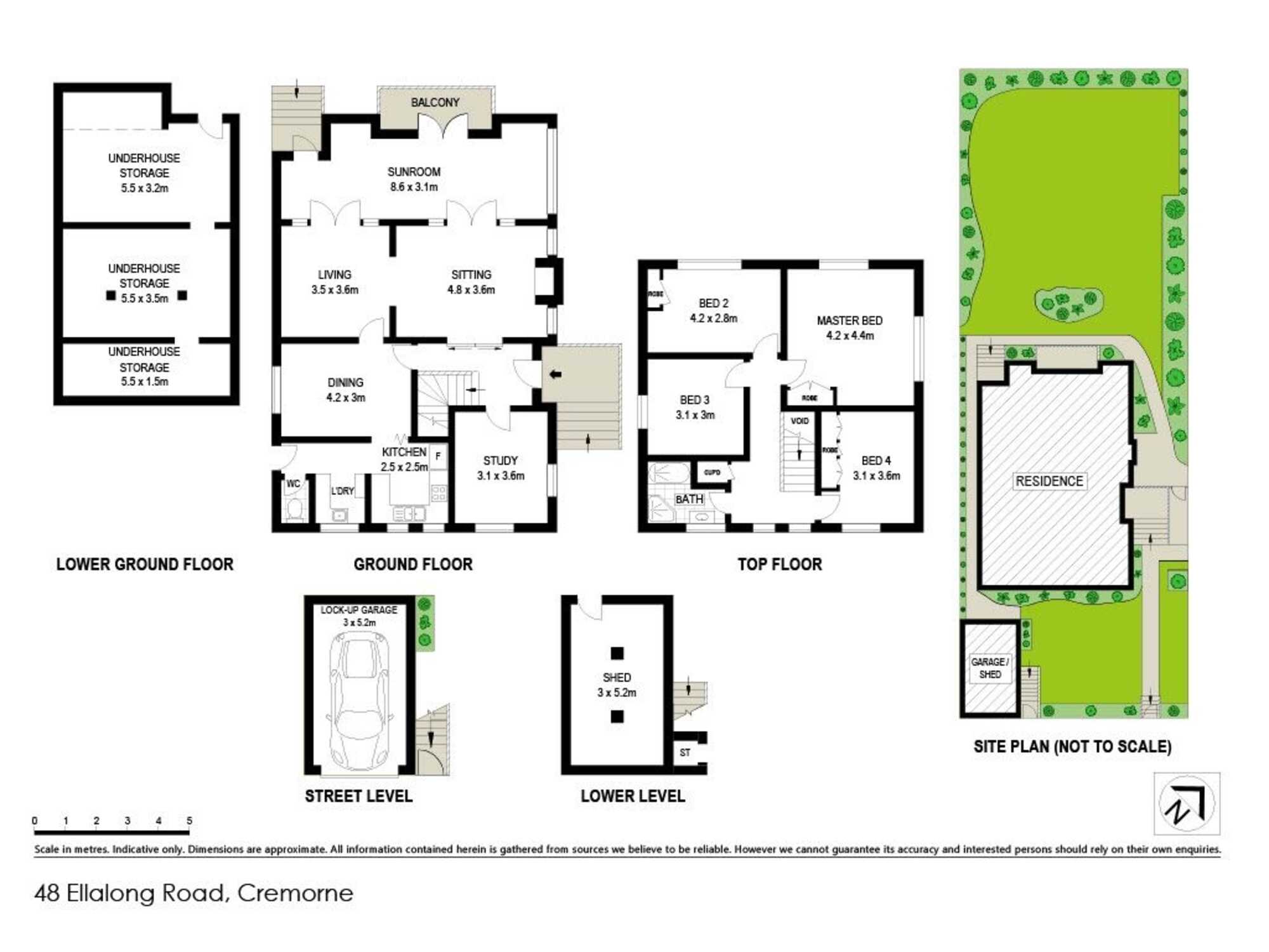
Its generously proportioned layout features a selection of living and entertaining spaces including a formal lounge with ornate timber fireplace, adjacent family living room, full width sunroom and separate dining room. Four bedrooms are privately positioned on the top floor, while a large study or optional fifth bedroom/study located on the entry level is ideal for guest accommodation. Perfect for families with young children, the private sun dappled backyard offers a sprawling manicured lawn, established gardens and mature trees.
Located in an idyllic pocket, the home is just 100 metres from Lodge Road Park and playground, and an easy nine minute walk to Middle Harbour Public School. It's on a generous 505sqm parcel enviably positioned between both Mosman and Cremorne villages, with easy access to the foreshore and no traffic lights to Sydney CBD.
- Elegant formal lounge room with ornate timber fireplace flows to adjoining family living
- Full width sunroom opens through French doors to a private balcony overlooking the garden
- Peaceful backyard includes extensive lawn, abundant sunlight filtered through mature trees
- Well presented kitchen has Bosch dishwasher, integrated oven, gas stove and adjacent dining
- Five generously proportioned bedrooms with leafy outlooks, three offer built-in wardrobes
- Extra large main bedroom features air conditioning, ample natural light and private aspect
- Classic family sized main bathroom with bathtub, separate internal laundry and guest w/c
- Recently updated carpet, polished timber floorboards, air conditioning and high ceilings
- Single lock-up garage including storage space underneath, plus ample underhouse storage
- In proximity to city buses, popular dining precincts, shopping amenities, Redlands School
Water Rates: $107.04pq approx
Council Rates: $459.00pq approx












